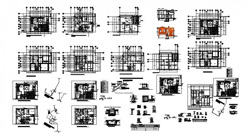
Floor housing plan in auto cad file
Description
Floor housing plan in auto cad file plan include detail of floor plan with wall and area distribution area of floor with bedroom kitchen and washing area with related detail of foundation, electrical and plumbing installation with necessary dimension.
Uploaded by:
Eiz
Luna

